Локация

Жилищна сграда "АТИНА"

Жилищна сграда „АТИНА" е място за живеене с елегантна и изчистена архитектура, което носи своя индивидуален облик и създава прекрасна атмосфера за хората, които ще намерят своя дом в нея.

Местоположението на сградата е в сърцето на един от най-предпочитаните за живеете квартали на София – Павлово. Спокойна градска среда и в същото време в близост до комуникации и оживени транспортни връзки – бул. Бъкстон, ул. Александър Пушкин и Околовръстен път.

Всички апартаменти в сградата са проектирани оптимално, разпределенията са функционални и основната цел е да предложат комфорт на своите бъдещи собственици и рационално усвояване на жилищното пространство.

Красиви фасадни елементи отличават сградата и допълват нейната уникалност и запомнящ се външен вид.

Общите части са проектирани с луксозно завършване, което да създава уют във вътрешното й пространство.

В момента строителството е в подготвителен етап. Предстои издаване на Разрешение за строителство и започване на строителните дейности през м. октомври 2021г.

Удобство за живущите в района са разположените в близост детски градини, училища, хипермаркети, търговски, спортни, обслужващи и административни обекти. Както и лесния достъп до транспортните артерии.

В жилищна сграда „АТИНА" са обособени двустайни, тристайни и четиристайни жилища с различни типове разпределения и площи. Предвидена е архитектурна възможност отделни съседни жилища да бъдат лесно обединени, което позволява индивидуално обособяване на жилище с по-просторни или повече на брой помещения според желанието и предпочитанията на конкретния купувач.

Разпределения

Жилищна сграда АТИНА - сутерен Жилищна сграда АТИНА - сутерен

Жилищна сграда „АТИНА" - сутерен

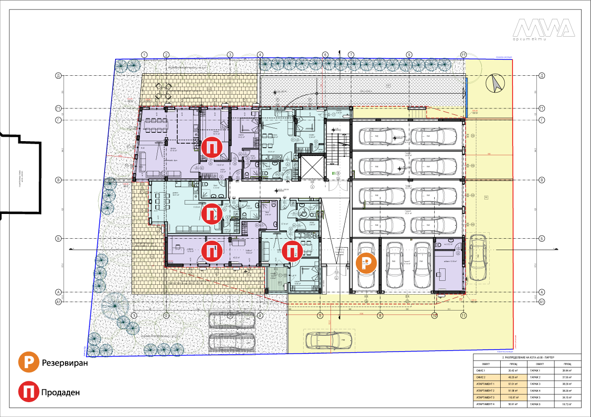
Жилищна сграда АТИНА - партер, етаж 1 Жилищна сграда АТИНА - партер, етаж 1

Жилищна сграда „АТИНА" - партер, етаж 1

Жилищна сграда АТИНА - етаж 2 Жилищна сграда АТИНА - етаж 2

Жилищна сграда „АТИНА" - етаж 2

Жилищна сграда АТИНА - етаж 3 Жилищна сграда АТИНА - етаж 3

Жилищна сграда „АТИНА" - етаж 3

Жилищна сграда АТИНА - етаж 4 Жилищна сграда АТИНА - етаж 4

Жилищна сграда „АТИНА" - етаж 4

Жилищна сграда АТИНА - етаж 5 Жилищна сграда АТИНА - етаж 5

Жилищна сграда „АТИНА" - етаж 5

Жилищна сграда АТИНА - етаж 6 Жилищна сграда АТИНА - етаж 6

Жилищна сграда „АТИНА" - етаж 6